Zur Navigation wechseln Zum Inhalt wechseln Zum Footer wechseln
LOFT21 Immobilien

** Attraktives Baugrundstück für Doppelhausprojekt – zentrale, dennoch ruhige Lage in Manching **

Kaufpreis: 758.000,00 €

Preise

Kaufpreis
758.000,00 €
Außen-Provision
3,57 % inkl. MwSt.

Kategorie

Objektart
Haus
Objekttyp
Doppelhaushälfte
Nutzungsart
Wohnen
Vermarktungsart
Kauf

Geografische Angaben

PLZ
85077
Ort
Manching
Land
Deutschland

Flächen

Wohnfläche
ca. 141 m²
Anzahl Zimmer
4,5
Anzahl Schlafzimmer
3
Anzahl Badezimmer
1
Anzahl sep. WC
1
Anzahl Terrassen
1

Ausstattung

Balkon Terrasse
Befeuerung
Luft/Wasser Wärmepumpe
Etagenzahl
2
Stellplätze
1 Freiplatz, 1 Garage

Technische Angaben

ImmoNr
2025VK646

Ausstattung

Eckdaten im Überblick:

• Gesamtgrundstücksfläche: ca. 739 m² (vor Teilung)
• Grundstücksfläche: ca. 372 m² (nach Teilung)
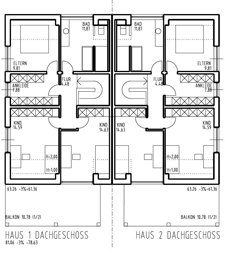
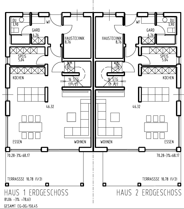
• Geplante Wohnfläche je Doppelhaushälfte: ca. 141 m²
• Bauweise: Massivbau (KfW 55-Standard)
• Pkw-Stellplatz im Kaufpreis enthalten
• Optional: Garage für 15.000 €
• Ohne Keller geplant – optional möglich
• Individuelle Wünsche aktuell noch umsetzbar (nach Abstimmung)
• Baugenehmigte Planung vorhanden

Nutzen Sie diese einmalige Gelegenheit, sich Ihren Traum vom eigenen Zuhause in einer der besten Lagen Manchings zu verwirklichen!

Der Baubeginn erfolgt nach Genehmigung des individuell zu erstellenden Eingabeplans. Dieser wird nach Zahlung einer Reservierungsgebühr in Höhe von 15.000 € pro Doppelhaushälfte durch die künftigen Eigentümer erstellt.

Beschreibung

In einer der besten und ruhigsten Wohnlagen von Manching entsteht auf einem ca. 739 m² großen Grundstück ein modernes und hochwertiges Doppelhausprojekt. Das Grundstück wird im Zuge der Bebauung in zwei annähernd gleich große Teilgrundstücke aufgeteilt. Geplant ist der Bau von zwei großzügigen Doppelhaushälften, die mit durchdachter Architektur, energieeffizienter Bauweise und einer hochwertigen Ausstattung überzeugen.

Die beiden Doppelhaushälften werden in Massivbauweise nach KfW-55-Standard errichtet und bieten jeweils eine Wohnfläche von ca. 141 m². Die Grundstücksflächen der beiden Haushälften werden im Rahmen der Realteilung gleichmäßig aufgeteilt. Alle Flächenangaben sind Circa-Werte und können im Zuge der weiteren Planung und Vermessung noch leicht variieren.

Im Kaufpreis enthalten ist bereits ein Pkw-Stellplatz im Wert von 8.000 €. Zusätzlich besteht die Möglichkeit, eine elektrifizierte Garage für 15.000 € zu erwerben.

Aktuell können noch individuelle Wünsche in die Bauausführung einfließen.

Ausstattungshighlights:
Die geplanten Doppelhaushälften bieten Ihnen ein modernes Wohnkonzept mit vielen Ausstattungsdetails, die für Komfort und Wohnqualität sorgen:
• Massivbauweise im KfW-55-Standard
• Kunststofffenster (innen weiß, außen anthrazit) mit 3-fach-Isolierverglasung
• Elektrische Rollläden an allen Fenstern
• Edler Treppenbelag aus italienischem Bianco-Sardo-Granit
• Luft-Wärmepumpenzentralheizung mit Außentemperatursteuerung und Nachtabsenkung
• Dezentrale Wohnraumbelüftung mit Wärmerückgewinnung für ein angenehmes Raumklima
• Bäder mit bodengleichen Duschen und Badewanne
• Pkw-Stellplatz im Kaufpreis enthalten (Wert 8.000 €)
• Optional: Garage mit elektrischem Rolltor und Nebentür für 15.000 €
• Geplant ohne Keller – optional gegen Aufpreis möglich


Die geplante Aufteilung schafft für beide Haushälften ausreichend Platz für eine großzügige Terrasse und einen schönen Gartenbereich. Die ruhige und familienfreundliche Lage in Manching rundet das attraktive Angebot ab.

Für weitere Informationen oder eine Besichtigung stehen wir Ihnen gerne zur Verfügung.

Lage

Das Grundstück in Manching bietet durch seine zentrale Lage im Musikviertel eine hohe Wohnqualität. Die geplante Doppelhausbebauung berücksichtigt moderne Architektur und hochwertige Ausstattung, die den Bedürfnissen heutiger Wohnansprüche gerecht werden.
Manching liegt verkehrsgünstig an der Autobahn A9 und befindet sich etwa 7 km nordwestlich von Ingolstadt. Supermärkte, Bäckereien und weitere Geschäfte des täglichen Bedarfs sind in kurzer Distanz erreichbar. In unmittelbarer Nähe befinden sich verschiedene Einrichtungen wie Schulen, Kindergärten und Sportanlagen, die für Familien mit Kindern attraktiv sind.

Sonstige Angaben

Die Vermittlung dieser Immobilie erfolgt ausschließlich durch LOFT21 Immobilien. Mit Ihrer Anfrage und der Inanspruchnahme der Dienstleistungen der LOFT21 Immobilien GmbH & Co. KG kommt ein Maklervertrag zustande. Wir bitten Sie zudem, unsere Allgemeinen Geschäftsbedingungen zu beachten.

Wir möchten Sie darauf hinweisen, dass alle von uns bereitgestellten Objektinformationen, Pläne und Unterlagen vom Eigentümer stammen. Eine Haftung für die Richtigkeit oder Vollständigkeit der Angaben übernehmen wir daher nicht. Es obliegt daher unseren Kunden, die darin enthaltenen Objektinformationen und Angaben auf ihre Richtigkeit hin zu überprüfen. Alle Immobilienangebote sind freibleibend und vorbehaltlich Irrtümer, Zwischenverkauf- und Vermietung.

Energieausweis

Energieausweis
es besteht keine Pflicht!

Deine Anfrage zu der Immobilie „** Attraktives Baugrundstück für Doppelhausprojekt – zentrale, dennoch ruhige Lage in Manching **“ (2025VK646)

Ihre Kontaktdaten

* Pflichtfelder

Ihr Ansprechpartner

Abdel Abou-Khalil

Herr Abdel Abou-Khalil

loft21 Immobilien GmbH & Co. KG

Tel.:
+49 841 938 958 60
E-Mail:
khalil@loft21.de

Neuburger Str. 17
85057 Ingolstadt

Weitere Immobilien

** Moderne Doppelhaushälfte in Manching – hochwertige Bauweise & Stellplatz inklusive **

ImmoNr: 2025VK496_2 Haus Doppelhaushälfte Kauf 85077 Manching Anzahl Zimmer: 4,5 Anzahl Schlafzimmer: 3 Grundstücksgröße: ca. 367 m² Wohnfläche: ca. 141 m²

** Idylle trifft Wohnkomfort – schöner Bungalow in ruhiger Lage **

ImmoNr: 2025VK698 Haus Bungalow Kauf 85088 Vohburg an der Donau Anzahl Zimmer: 4 Anzahl Schlafzimmer: 3 Grundstücksgröße: ca. 577 m² Wohnfläche: ca. 122 m²

** Ihr neues Zuhause für die ganze Familie – neuwertige Doppelhaushälfte in Toplage **

ImmoNr: 2025VK702 Haus Doppelhaushälfte Kauf 85055 Ingolstadt Anzahl Zimmer: 6 Anzahl Schlafzimmer: 5 Grundstücksgröße: ca. 386 m² Wohnfläche: ca. 252 m²

** Zwei Häuser – Ein Preis! Nur wenige Minuten von Ingolstadt **

ImmoNr: 2026VK733 Haus Mehrfamilienhaus Kauf 85088 Vohburg an der Donau / Rockolding Anzahl Zimmer: 8 Anzahl Schlafzimmer: 6 Grundstücksgröße: ca. 931 m² Wohnfläche: ca. 205 m²

** Zwei Häuser – Ein Preis! Nur wenige Minuten von Ingolstadt **

ImmoNr: 2026VK734 Haus Zweifamilienhaus Kauf 85088 Vohburg an der Donau / Rockolding Anzahl Zimmer: 8 Anzahl Schlafzimmer: 6 Grundstücksgröße: ca. 931 m² Wohnfläche: ca. 205 m²